Fjelltun school in massive wood

Strand Kommune is planning for a new large school with a flexible plan and concept that accommodates current pedagogical practices in Jørpeland. 3RW and Nord’s project for Fjelltun Skole is planned as a simple and linear addition to the educational masterplan being developed, and a powerful signal building for sustainability with an emphasis on the school building and grounds that doubles as an educational tool. The school is a passive house in massive wood.

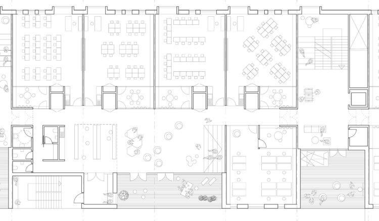
We have divided the school in seven sections. A special emphasis is given to daylight for each section, where all classrooms have access to common areas. New possible pedagogical opportunities arise from this vertical organization. Our project creates a sense of identity and belonging for students and teachers, as well as for the neighborhood and town, providing Strand with new urban- and landscape qualities. The building body and its associated exterior spaces turn into a new meeting place for all. It reconnects and expands the green corridor along the river. In that sense, the school represents a new exciting civic environment for the town, and becomes a “gateway to outdoor activities”.

The concept proposes “an active base with special program mediating the terrain, and a simple linear building contributing to a learning cluster organised in the landscape”. Its main design parameters include a simple, slender shape that opens out to the existing landscape corridor; an efficient passive-house volumetry; a collection of generous special programs that emerge as visible destinations, an active plinth with varied, children-oriented architectural scales; daylight flooded common “trinn” spaces and practical programmed balconies, a clear circulation route and a series of staircases creating gathering opportunities.

Search loading indicator