Sunnhetsgrenden Vardheim

New Vardheim creates a synergy between several health communities that meet in an active and open house, becoming a trademark for the municipality and setting out new standards for future development of welfare institutions.

Together with Nord architects from Copenhagen 3RW are working with several healthcare centers that focus on the demand to make the new generation healthcare institution like homes and less like hospitals.

Sunnhetsgrenden in Randaberg is inspired by the old type of Norwegian hamlets called a “grend”, where a small cluster of houses create a micro community. Here the Norwegian peasants gathered in a shared physical space to have a sense of community, common destiny and connection to the land. The center will accumulate the various healthcare programs and, with its green courtyards, create a green walking path between the town and the facing mountain. With the existing buildings on the site, the center will constitute a unique architectural interaction and an innovative concept for contemporary institution buildings.

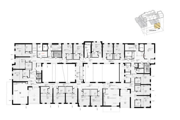
The healthcare centre will be built in 3 steps. In each step, a new building mass will replace an existing building and at the same time interact with preserved buildings. The first step comprises a caretake home, a treatment centre and a public outdoor space that will work as a natural meeting place in the town. The second step will be the main front desk, staff facilities, an activity centre, a nursing home and a daycare centre for the disabled, doctor’s offices, cafe and other amenities. The third step is a psychiatric center, family and children department, dental center and an additional care take homes.

The vision is to create a new typology that will organize one of the most important welfare tasks in society and cover all aspects of the healthcare terminology. The idea of a hamlet where the well-being of home and treatment accommodations of a big institution are mixed, will inspire future institutions.The new healthcare facility offers a broad range of different treatments under one roof from nursing homes to doctors’ consultations and therapy. The building measures 11,000 sq. but seems much smaller thanks to a design where the building is scaled down to smaller entities. Each house in the building is built with natural materials and offers a homely atmosphere. A solid base in natural stone connects the houses like the stone fence in the local west coast landscape. The rest of the materials are almost exclusively built in wood. Between the houses a myriad of courtyards, recreational gardens and greenhouses make a green and welcoming atmosphere.

 

 

Search loading indicator