BEK – Bergen Centre for Electronic Arts Refurbishment

BEK – Bergen Centre for Electronic Arts is an interdisciplinary centre for the development of art and new technology. They aim to extend the field of electronic art through collaboration, critical reflection and the sharing of knowledge. 3RW was engaged to investigate the potential by rebuilding their spaces.

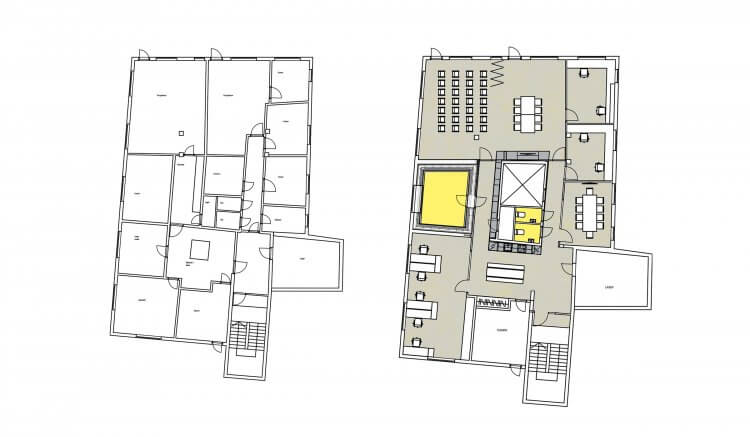
The goal of the rebuild was to make the center attractive and functional for both employees and artists. The artists who work here should feel welcome, and have their work needs covered. Folding wall in the space makes it possible to carry out large events if needed, or divide it into two separate workshops for artists. Audio studio is built to sound class A. The employees are organized in a smaller landscape visible from the common area and entrance zone. In this way they are accessible, while having their own space where they can work concentrated. Attractive common area with kitchen and dining table for both staff and artists, as well as library with literature for the field, stimulates professional exchange and informal meetings.

3RW focused on creating a bright, clean, functional and inspiring workplace that takes artists’ needs seriously. Flexibility and utilization of the spaces have been important since the use varies from courses, meetings, interdisciplinary workshops, art production in various media, etc. At the same time, the center must facilitate artistic exploration – also for many years to come.

 

Search loading indicator