Literature Pavilion at the 2019 Frankfurt Book Fair

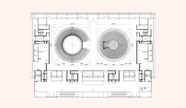
“Cave” and “Clearing” are two circular wood pavilions proposed for the Norwegian Pavilion at the Frankfurt Book Fair in October 2019. Used as information points and meeting places for forums, press conferences or reading, their circular shape puts literature at the literal centre of the user’s experience. “Cave” and “Clearing” are respectively convex and concave pavilions that use terraced wood elements that act structurally and define the inner and outer spaces. Books are found in-between the wood lamellas of the stepped structures, hence made available for consultation to all visitors.

An iconic form of social gathering and interconnection, the circle evokes notions of togetherness, conversation and protection. Both literature pavilions relate back to Northern culture, where traditional Sami lavas are built in a circular shape to insure safety and strengthen feelings of belonging to the community. Moreover, the circle recalls universally shared experiences of gathering around the fire, or dancing in circles. By placing the “Cave” and the “Clearing” in the Book Fair’s rectangular exhibition room, a place for social interactions is made recognisable.

 

The concave “Clearing” pavilion forms a bowl shape that provides a sloping circular atrium. As in an opening in the woods, one finds room for large gatherings such as reading, discussing, concerts and lectures. Immediately outside the pavilion, its overhanging roof creates spaces for press interviews and small exhibitions – with free-standing objects on the floor or prints and videos hanging down from the “Clearing’s” outer sloping ceiling.

 

Its neighbouring convex pavilion also forms a terraced landscape where users can sit and read, eat lunch, relax or talk in smaller groups. Distributed along its periphery, calmer areas of the “Cave” are programmed to house reading places, with cushions to be moved around according to people’s needs. Within the structure, the grotto-like room incites silent contemplation and a feeling of tranquillity. Books and benches are placed inside, as well as a soft blanket that softens the floor. A reminder of the rapidly changing Norwegian sky, canvases featuring rain, spring clouds and northern lights are hanged on the hall’s ceiling and can be observed through the top hole in the pavilion.

 

Bolted massive wooden elements are modulated to form the project’s circular architectures. They are placed in a way that insures an easy assemblage and disassemblage technique, as well as a transparent expression. This construction type – with its efficient wood pieces and joints – echoes Norwegian building tradition, while its pale colour and plywood finish recall a more contemporary, DIY architectural aesthetic. The choice of wood was likewise confirmed by its renewable qualities and low CO2 footprint.

 

The proposal received the runner-up jury award ‘INNKJØP’ attributed to three teams amongst a total of 66 entries. Two honourable mentions were also given.

Search loading indicator