MUST – teater og museum

Sammenlegging av Rogaland Teater og Stavanger Museum – arkitektkonkurranse.
Samfunnet må styrke sine grunnmurer for fremtiden. Kultur og kunnskap er grunnfjellet – de forteller hvem vi er, og antyder hvor vi skal. Tradisjon og fornyelse danner brohoder i tilværelsen og gir mening i folks hverdag. I sentrum av denne sammenhengen, fra antikken til i dag, står to romlige institusjoner: teateret og museet. Teateret favner øyeblikket. Museet forvalter hukommelsen.

Vi er stolte over vårt bidrag i arkitektkonkurransen om sammenleggingen av Rogaland Teater og Stavanger Museum. Prosjektet er utarbeidet i et rådgiverteam med Reiulf Ramstad arkitekter i spissen, i samarbeid med 3RW arkitekter og Scheldrup & Gram, i tillegg til Grindager, Charcoal Blue, Cassonmann og Bollinger Grohmann.

Samfunnet må styrke sine grunnmurer for fremtiden. Kultur og kunnskap er grunnfjellet – de forteller hvem vi er, og antyder hvor vi skal. Tradisjon og fornyelse danner brohoder i tilværelsen og gir mening i folks hverdag. I sentrum av denne sammenhengen, fra antikken til i dag, står to romlige institusjoner: teateret og museet. Teateret favner øyeblikket. Museet forvalter hukommelsen. I dette skjæringspunktet blir prosjektets ledetråd tydelig: «Alt henge samen».
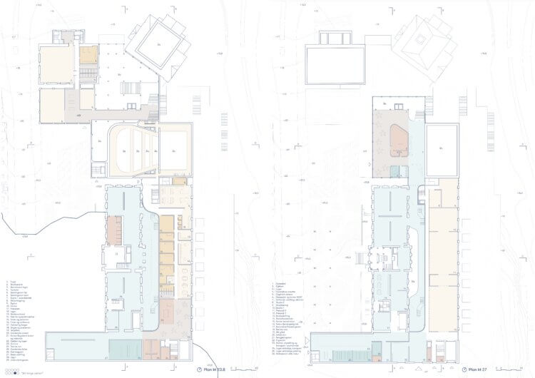
Stavanger med omland er en av landets mest dynamiske byregioner. I dette skiftende landskapet er Rogaland Teater og Stavanger Museum bærende institusjoner med et tydelig og visjonært samfunnsoppdrag. At de, gjennom prosjektet, vil samle seg og gro videre sammen, uttrykker tillit, retning, vilje, visjon og ansvar. Vårt prosjekt oversetter dette til bygde former og bylandskap, tilgjengelighet og romlige sammenhenger som danner rammer for fremtidens aktivitet – alltid med bevisstheten om: funksjon og form, sted og bruk, historie og nyskaping.

Vi hyller og gratulerer vinnerprosjektet til Lund Hagem for deres forslag til nytt teater og museum i Stavanger og håper dette blir realisert i en tid der både statlige og uavhengige kulturinstitusjoner og det frie uttrykk er under press.

Search loading indicator